Domaine Valbois

Appartement

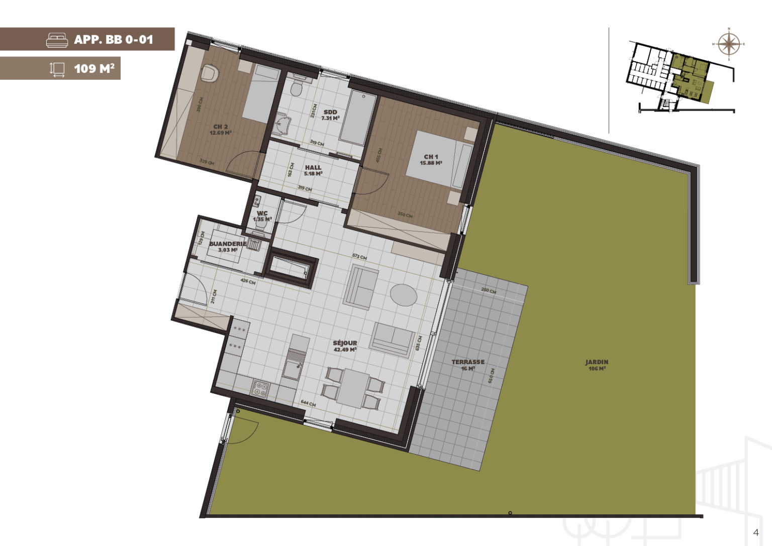
BB 0-01

  • Bloc : Le Chêne
  • Chambres : 2
  • Superficie brute : 109 m²
  • Terrasse/balcon : 16 m²
Plus de détails

Détails techniques

Niveau de performance énergétique répondant aux plus fortes exigences, à savoir « logement quasi zéro énergie (Q-Zen) »

  • Niveau d’isolation thermique global K26 ;
  • Rapports de consommation : Ew <45 et Es moyen 45 ;
  • Niveau d’étanchéité élevé (hypothèse 0,8 Vol/h) ;
  • Ventilation mécanique double flux (système D) ;
  • Production de chaleur et d’eau chaude sanitaire via une pompe à chaleur commune ;
  • Châssis PVC sauf coulissant terrasse en aluminium ;
  • Châssis double vitrage (Ug 1W/m2K et Uw 1,3 W/m2 K) ;
  • Panneaux photovoltaïques pour les penthouses ;
  • PEB prévisionnel : A et A+ selon les cas.